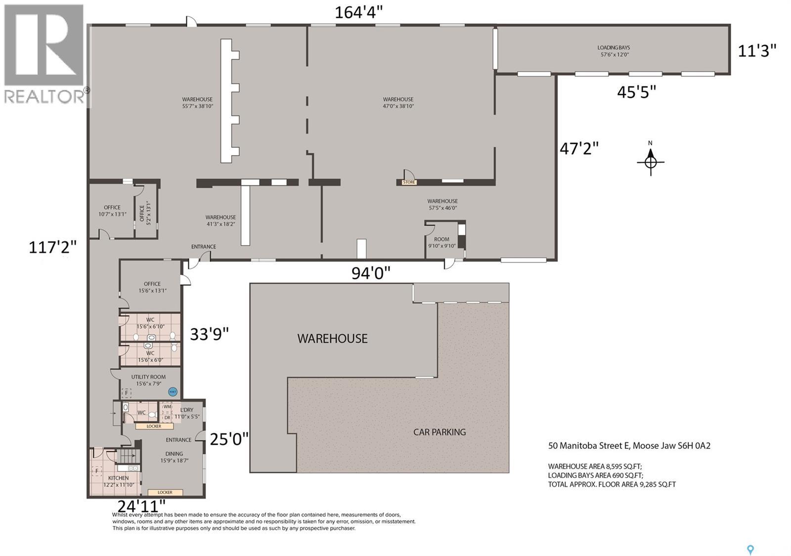
Welcome to an exceptional opportunity in downtown Moose Jaw! This expansive commercial warehouse boasts nearly 9,000 sq ft, providing a versatile space for your business needs. Conveniently located with easy access to the #1 highway, visibility is maximized for your enterprise. Featuring two offices, three bathrooms, a locker room, and a well-equipped kitchen space, this warehouse is designed to meet your operational requirements seamlessly. The practical layout includes three 9' overhead doors, perfectly suited for hauling trucks or semis, along with an additional 10' overhead door at the front of the building. Ample parking right in front ensures convenience for both staff and clients. Don't miss out on this prime location that combines functionality, accessibility, and prominence for your business success! ***All photos were taken during former tenant occupancy. Property is now vacant.*** (id:62517)
| Business Type | Industrial |
| Business Sub Type | Warehouse |
| MLS® Number | SK002253 |
| Property Type | Industrial |
| Neigbourhood | Central MJ |
| Constructed Date | 1994 |
| Construction Style Other | Distribution |
| Heating Type | Furnace |
| Size Exterior | 8845 Sqft |
| Size Interior | 8,845 Ft2 |
| Type | Warehouse |
| Acreage | No |
| Size Irregular | 0.47 |
| Size Total | 0.47 Ac |
| Size Total Text | 0.47 Ac |
https://www.realtor.ca/real-estate/28157838/50-manitoba-street-e-moose-jaw-central-mj
Contact us for more information
Teresa Thompson
Salesperson
(306) 988-0080
(306) 988-0682
globaldirectrealty.com/
Obadiah (O) Thompson
Salesperson
(306) 988-0080
(306) 988-0682
globaldirectrealty.com/
No Favourites Found
The trademarks REALTOR®, REALTORS®, and the REALTOR® logo are controlled by The Canadian Real Estate Association (CREA) and identify real estate professionals who are members of CREA. The trademarks MLS®, Multiple Listing Service® and the associated logos are owned by The Canadian Real Estate Association (CREA) and identify the quality of services provided by real estate professionals who are members of CREA. The trademark DDF® is owned by The Canadian Real Estate Association (CREA) and identifies CREA's Data Distribution Facility (DDF®)